CASA 5
MODELO 5
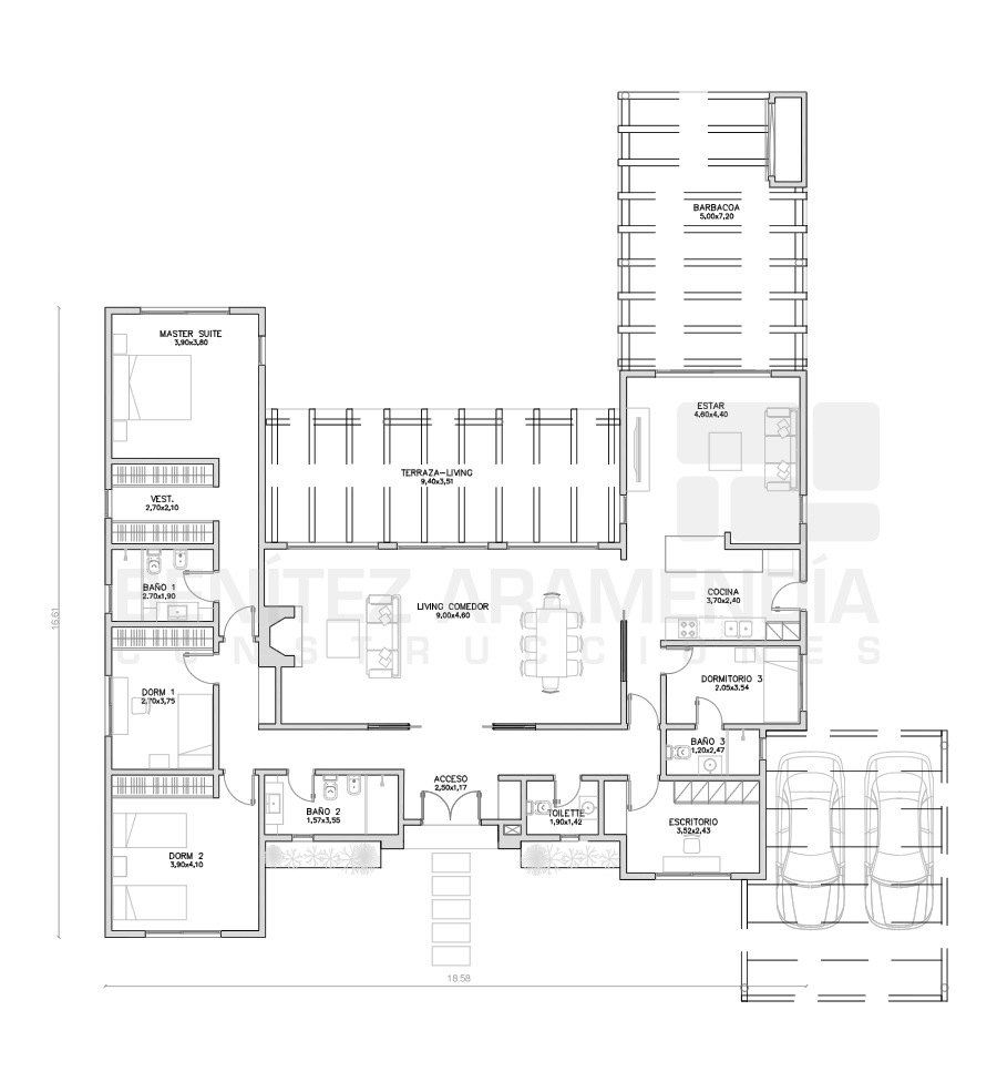
La casa se desarrolla toda en una planta, cuenta con doble circulación y un importante living comedor con gran altura de techos y ventanales al jardín. En la composición de su fachada se aprecia una marcada simetría con el acceso principal al centro y un rico juego de volúmenes. Al ingresar nos recibe un hall central definido que se vincula con un toilette de visitas, un escritorio y el gran living comedor. La cocina se ubica junto a el estar diario y la misma puede ser definida o integrada con una barra o isla. Adyacente a la cocina se encuentra un dormitorio con baño en suite. La zona privada se compone de tres cómodos dormitorios y dos baños. El dormitorio principal cuenta con baño en suite y vestidor. En los espacios exteriores están previstos un parrillero con pérgola cubierta, una terraza con pérgola cubierta vinculada al living comedor, un área de servicios con tendedero, depósito y una cochera con pérgola cubierta para dos autos.
PLANO DE CASA 5
| CARACTERISTICAS |
|---|
| - 4 Dormitorios |
| - 4 Baños |
| - Living |
| - Comedor |
| - Cocina |
| - Estar Diario |
| - Escritorio |
| - Lavadero |
| - Barbacoa |
| - Cochera x 2 |
| - Tender |
| - Deposito |
| - Pergola Living |