CASA 6
MODELO 6
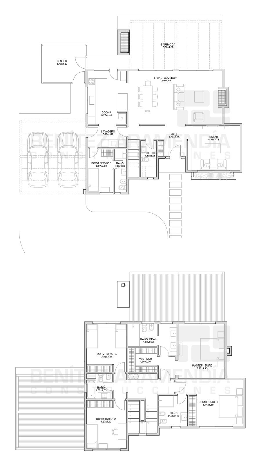
La casa se desarrolla en dos niveles. Al ingresar por la planta baja nos recibe un hall de acceso vinculado a un toilette de visitas, un estar diario o escritorio y el gran living comedor con ventanales al jardín posterior. La cocina se ubica junto al living comedor y puede ser definida o integrada con una barra o isla. Adyacente a la cocina se encuentra una zona de lavadero y un dormitorio con baño en suite. En la planta alta tenemos cuatro dormitorios, el dormitorio principal cuenta con baño en suite y vestidor definido, luego hay un segundo dormitorio también con baño en suite y por ultimo dos dormitorios que comparten un baño. El hall de distribución cuenta con un amplio placard para la ropa blanca. En los espacios exteriores están previstos un parrillero con pérgola cubierta vinculada al living comedor, un área de servicios con tendedero, depósito y una cochera con pérgola cubierta para dos autos.
PLANO DE CASA 6
| CARACTERISTICAS |
|---|
| - 5 Dormitorios |
| - 5 Baños |
| - Living |
| - Comedor |
| - Cocina |
| - Estar Diario |
| - Lavadero |
| - Barbacoa |
| - Cochera x 2 |
| - Tender |
| - Deposito |